Apartament 4 camere cu gradina, langa Parcul Cismigiu, Bucur
519.000 EUR
Apartament, oferta foarte rara !Va propunem un apartament modern de 4 camere, localizat in zona de top, in apropierea Parcului Cismigiu, ce se bucura de o suprafata foarte generoasa si o terasa/curte proprie de 80mp;
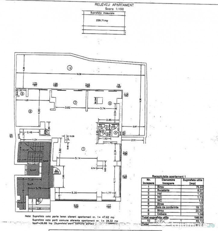
Apartamentul este disponibil la parter, are suprafata vitrata generoasa fiind pretabil pentru orice activitate de tip office, clinica, showroom, spatiu comercial dar si rezidenta;
Imobil este compus din Demisol, Parter si 4 etaje iar apartamentul dispune de o suprafata foarte generoasa de 260 mp construiti, respectiv 147 mp util interior, la care se adauga doua locuri de parcare in subteran si terasa amenajata;
Curtea are o suprafata de 83mp si este amenajata cu pavele si arbusti decorativi, reprezentand un spatiu ideal pentru petrecerea timpului liber;
Apartamentul este compartimentat pentru activitate de birou, incluzind un open space in suprafata de 77mp, o sala de conferinte, 2 birouri , spatii de depozitare si doua toalete ;
Spatiul poate fi recompartimentat cu usurinta intr-un apartament rezidential, rezultand un apartament cu 4 camere ( 3 dormitoare Living Bucatarie 3 bai ) conform planului de amenajare;
Imobilul se afla in centrul Bucurestiului, in zona 0 a Capitalei, cu acces facil la o bogata activitate culturala (teatre, muzee, sali concerte, scena alternativa), dar in acelasi timp si intr-o zona rezidentiala linistita si prietenoasa cu copiii (gradinite si Liceul Cervantes), in imediata vecinatate a trei parcuri importante (Parcul Cismigiu, Parcul Operei si Parcul Izvor).
Dispune de o accesibilitate mare, afandu-se in apropierea Caii Victoriei si noului ax Buzesti-Uranus care asigura o legatura directa cu Gara de Nord si Piata Victoriei, in apropierea mai multor statii ale magistralelor Metrorex (Izvor, Eroilor, Universitatii); Facilitati: gradinite, scoli, centre comerciale, magazine, banci, centre SPA, statii ale mijloacelor de transport in comun, etc.
Pret apartament 519.000 Euro inclusiv doua locuri de parcare subteran.
Oferta apartine agentiei Top Estate Team, Link oferta: www.tet.ro
Confort: lux
Tip imobil: Bloc de apartamente
Număr Băi: 2
Posibilitate parcare: Da
Nr. locuri parcare: 2
Publicat prin HomeZZ.ro, vezi anunțul complet aici.
Anuntul Apartament 4 camere cu gradina, langa Parcul Cismigiu, Bucur este adaugat de pe LaJumate.ro.
Anunturi similare
3.200 EUR
Skoda Fabia 2 combi 1.6 tdi 2011
Skoda Fabia Combi 1.6 TDI – 2011 – 207.000 km – stare excelentă Preț: 3200€ Locație: Roșiori de Vede ...
7.500 EUR
Mazda BT 50 Autoutilitara 4x4 An 2009
De vanzare Mazda BT 50, motor 2.5 D 143 CP, 197000 km. Este masina personala, toate actele valabile, ...
28.500 EUR
Ford kuga ST hibrid plug-in
Ford kuga ST motor 2.5 hibrid plug-in cu 243cp Model ST plus ,Jane 20 , faruri Matrix etc full 2025 ...
10.190 EUR
BMW f10 520d 2012 Pachet M
Bmw 520D F10 184cp Euro5 Pachet M Tara de origine :Germania Km:263.000 (Carte Service) Nr proprietari ...
2.300 EUR
Duba Fiat Ducato
Fiat Ducato,an 2000 ,motor Iveco 2,800 fără turbo 90 cai ,aer condiționat geamuri electrice . ...
2.200 EUR
Skoda octavia 19 ALH stare buna
Vand skoda octavia 19 alh STARE buna aer conditionat servo direcție geamuri electrice dublu aerbg pac ...
15.500 EUR
Kia Niro Hybrid, an 2019, 75000 km
Kia Niro Hybrid, an 2019, 75000 km, trapă, full option, luată de la reprezentanță, în garanție încă 1 ...
11.500 EUR
Land Rover Discovery Sport
Vând Land Rover Discovery Sport Euro 6 An model 2017 cutie manuala tracțiune 4x4 cu 4 moduri de condu ...
14.000 EUR
Skoda Superb 1.6 TDI DSG 2018 - Full Option
Mașina personală îngrijită și întreținută. Funcționează impecabil fără erori sau probleme tehnice. A ...
14.500 EUR
Ford Tranzit Custom 2017
Ford Transit Custom L2H2 Varianta cea mai Lunga 8+1 Locuri Scaune individuale Asistentă la urcare ...








