Casa 5 camere plus garaj, in Paulestii Noi, cartier Bionic R
195.000 EUR
Casa 4 camere, in Paulestii Noi situata in cartierul Bionic Residence, intr-o zona de case nou construite, avand ca vecinatati spitalul Mediurg, Piata Artizante, Mega Image, scoala Angels, parc, after school etc.Ansamblul este alcatuit din 14 case cu acces prin bariera actionata electric, locuri de parcare pentru vizitatori, strada asfaltata cu sens unic, iluminat stradal LED etc.
Este construit in anul 2025 cu fundatia de beton armat izolata termic cu polistiren extrudat si hidroizolata, structura pe cadre de beton, peretii din caramida Porotherm onclusiv cei de compartimentare interioara, placa de beton pe fiecare nivel, tencuit la interior si izolat termic la exterior cu polistiren de 10 cm EPS 80. Acoperisul este din tabla Lindab.
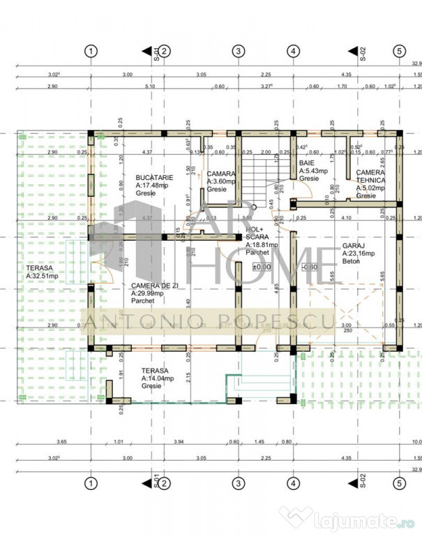
Amprenta casei este de 133,51 mp, suprafata construita desfasurata 267 mp, suprafata utila 200 mp, terase 28 mp compartimentata astfel:
Parter: hol (18,81 mp), living (30 mp), bucatarie (17,48 mp), camara (3,6 mp), baie (5,4 mp), camera tehnica (5 mp), garaj (23 mp), terasa (14 mp) si casa scarii;
Etaj: dormitor 1 (25 mp), dormitor 2 (15,75 mp) cu baie proprie (5,55 mp), dormitor 3 (17,63 mp), dormitor 4 (16,4 mp), hol (13,62 mp), baie (4,59 mp) si pod.
Suprafata teren:
Variantra casa 1: 349 mp, deschidere 16 ml.
Varianta casa 2: 251 mp, deschidere 16 ml.
Dotari exterioare: teren imprejmuit cu tabla si bordura de beton, curte betonata, pavata si pamant vegetal, terase placate cu ceramica de exterior, corpuri de iluminat exterioare, vopsea decorativa etc.
Dotari interioare varianta casa 1: usa intrare PVC Salamander gem tripan, tamplarie PVC Salamander 7 camere geam tripan, centrala terimica pe gaz, incalzire in pardoseala parter/ etaj, sapa elicopterizata, vopsea lavabila, prize si intrerupatoare.
Dotari interioare varianta casa 2: usa intrare PVC Salamander gem tripan, tamplarie PVC Salamander 7 camere geam tripan, centrala terimica pe gaz, incalzire in pardoseala parter/ etaj, sapa elicopterizata, vopsea lavabila, prize si intrerupatoare, ceramica montata in bai, parchet laminat, plinta PVC.
Utilitati: apa, gaz, lumina, canalizare.
Pret: varianta 1: 195000 euro 19% TVA.
varianta 2: 190000 euro 19% TVA.
Număr Băi: 3
Posibilitate parcare: Da
Nr. locuri parcare: 1
Curent
Apă
Canalizare
Gaz
Publicat prin HomeZZ.ro, vezi anunțul complet aici.
Anuntul Casa 5 camere plus garaj, in Paulestii Noi, cartier Bionic R este adaugat de pe LaJumate.ro.
Anunturi similare
100 RON
Dezmembrez HYUNDAI COUPE 2 (GK) 1.6i (02.2004) + 2.0i (03.2002)
Dezmembrez HYUNDAI COUPE 2 (GK) 1.6i (02.2004) + 2.0i (03.2002) HYUNDAI COUPE 2 (GK) 1.6i (03.2002 - ...
107 RON
Macara geam dreapta fata Renault Laguna 2008
Macara geam dreapta fata Renault Laguna 2008. Cod(uri): 807300003R. Piesele comercializate sunt origi ...
100 RON
Dezmembrez LAND ROVER FREELANDER 1 1.8i din 03.1999 ~ 1.8 K16 HOU
Dezmembrez LAND ROVER FREELANDER 1 (1996-2006) 1.8i din 03.1999 ~ 1796 CMC ~ 88 KW ~ 118 CP ~ Tip mot ...
107 RON
Macara geam dreapta fata Volkswagen Jetta 2012
Macara geam dreapta fata Volkswagen Jetta 2012. Cod(uri): 936780110. Piesele comercializate sunt orig ...
107 RON
Macara geam dreapta fata Volkswagen Jetta 2013
Macara geam dreapta fata Volkswagen Jetta 2013. Cod(uri): 3C0959793B. Piesele comercializate sunt ori ...
100 RON
Dezmembrez SEAT LEON 1M1 1.6i 16V (05.2004) ~ Tip motor BCB
Dezmembrez SEAT LEON 1M1 1.6i 16V (05.2004) ~ 1598 CMC ~ 77 KW ~ 105 CP ~ Tip motor BCB SEAT LEON 1M ...
107 RON
Macara geam dreapta fata Dacia Duster 2013
Macara geam dreapta fata Dacia Duster 2013. Piesele comercializate sunt originale, provenite din dezm ...
100 RON
Dezmembrez TOYOTA AVENSIS T25 1.6i (2005) - 1598 CMC - 81 KW - 110 CP
Dezmembrez TOYOTA AVENSIS T25 (Apr.2003 - Noi.2008) 1.6i din 2005 - 1598 CMC - 81 KW - 110 CP TOYOTA ...
107 RON
Macara geam dreapta fata Volkswagen Golf 6 Plus 2010
Macara geam dreapta fata Volkswagen Golf 6 Plus 2010. Cod(uri): 5M2837402Q. Piesele comercializate s ...
155 RON
Macara geam dreapta fata Dacia Logan Mcv 2013
Macara geam dreapta fata Dacia Logan Mcv 2013. Piesele comercializate sunt originale, provenite din d ...









