Birou/Apartament 4 camere cu gradina, zona Cismigiu
519.000 EUR
Apartament, oferta foarte rara !Va propunem un apartament modern de 4 camere, localizat in zona de top, in apropierea Parcului Cismigiu, ce se bucura de o terasa/curte superba si vitrina la strada;
Apartamentul este disponibil la parter, are suprafata vitrata generoasa fiind pretabil pentru orice activitate de tip office, clinica, showroom, spatiu comercial dar si rezidenta;
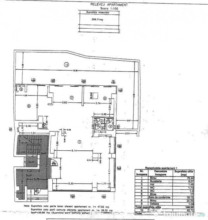
Imobil este compus din Demisol, Parter si 4 etaje iar apartamentul dispune de o suprafata foarte generoasa de 260 mp construiti, respectiv 147 mp util interior, la care se adauga doua locuri de parcare in subteran si terasa amenajata;
Curtea are o suprafata de 83mp si este amenajata cu pavele si arbusti decorativi, reprezentand un spatiu ideal pentru petrecerea timpului liber;
Apartamentul este compartimentat pentru activitate de birou, incluzind un open space in suprafata de 77mp, o sala de conferinte, 2 birouri , spatii de depozitare si doua toalete ;
Spatiul poate fi recompartimentat cu usurinta intr-un apartament rezidential, rezultand un apartament cu 4 camere ( 3 dormitoare Living Bucatarie 3 bai ) conform planului de amenajare;
Imobilul se afla in centrul Bucurestiului, in zona 0 a Capitalei, cu acces facil la o bogata activitate culturala (teatre, muzee, sali concerte, scena alternativa), dar in acelasi timp si intr-o zona rezidentiala linistita si prietenoasa cu copiii (gradinite si Liceul Cervantes), in imediata vecinatate a trei parcuri importante (Parcul Cismigiu, Parcul Operei si Parcul Izvor).
Dispune de o accesibilitate mare, afandu-se in apropierea Caii Victoriei si noului ax Buzesti-Uranus care asigura o legatura directa cu Gara de Nord si Piata Victoriei, in apropierea mai multor statii ale magistralelor Metrorex (Izvor, Eroilor, Universitatii); Facilitati: gradinite, scoli, centre comerciale, magazine, banci, centre SPA, statii ale mijloacelor de transport in comun, etc.
Pret apartament 519.000 Euro inclusiv doua locuri de parcare subteran.
Oferta apartine agentiei Top Estate Team, Link oferta: www.tet.ro
Suprafaţă totală: 260 m²
An finalizare construcție: 2010
Stadiu construcţie: Finalizat
Înălţime spaţiu: 3 m
Număr încăperi: 4
Posibilitate parcare: Da
Nr. locuri parcare: 2
Tip imobil: Bloc de apartamente
Publicat prin HomeZZ.ro, vezi anunțul complet aici.
Anuntul Birou/Apartament 4 camere cu gradina, zona Cismigiu este adaugat de pe LaJumate.ro.
Anunturi similare
400 EUR
Studio video dotat complet - Doi Cocoși, Utilități inclus
Locație: Etajul 1, într-o zonă accesibilă și vizibilă – Doi Cocoși, Pitești Suprafață utilă: 30 mp + ...
900.000 EUR
Ansamblu agrozootehnic cu renume,dotat valoare exceptionala
Comision cumparator: 2% TVA, din valoarea de tranzactionare ASCENDENT IMOBILIARE este onorata sa v ...
470.000 EUR
Spațiu comercial – Chirias Activ - Universitate
R.E.A. Imobiliare - Spatiu comercial de vanzare, zona Universitate Spatiu comercial cu venit garanta ...
3.500.000 EUR
Hala productie 23 August.
Proprietatea este compusa din : - 5202,7 mp teren neocupat , reprezentand alei rutiere, spatii de par ...
300 EUR
Spatiu birou 12 mp central Piatra Neamt
Excelenta prin experienta! Va oferim spre inchirirere un spatiu de birou in Piatra Neamt, central, ...
3.600 EUR
Spatiu comercial ideal, Brasov
ID intern: 6180 Regis Imobiliare va propune spre inchiriere va propune spre inchiriere un imobil mod ...
299.500 EUR
Oferta! Pensiune cu 7 camere de vânzare/ Poiana Marului
Refugiu de poveste la poalele Pietrei Craiului Vă invităm să descoperiți o proprietate deosebită, am ...
1.680 EUR
Spatiu depozit si birouri 280 mp Baicului lift marfa
Va prezint la inchiriere un spatiu cu o suprafata totala de 280 format din zona de birouri si zona d ...
230.000 EUR
Spațiu comercial de vânzare – Drumul Taberei, zonă Vale
R.E.A. Imobiliare Spațiu comercial de vânzare – Drumul Taberei, zonă Valea Oltului Investiție sigur ...
5.000 EUR
Spatiu comercial de 150 mp in intersectie strategica - Oport
Descoperiți o oportunitate comercială de excepție! Acest spațiu de 150 de metri pătrați, amplasat la ...






